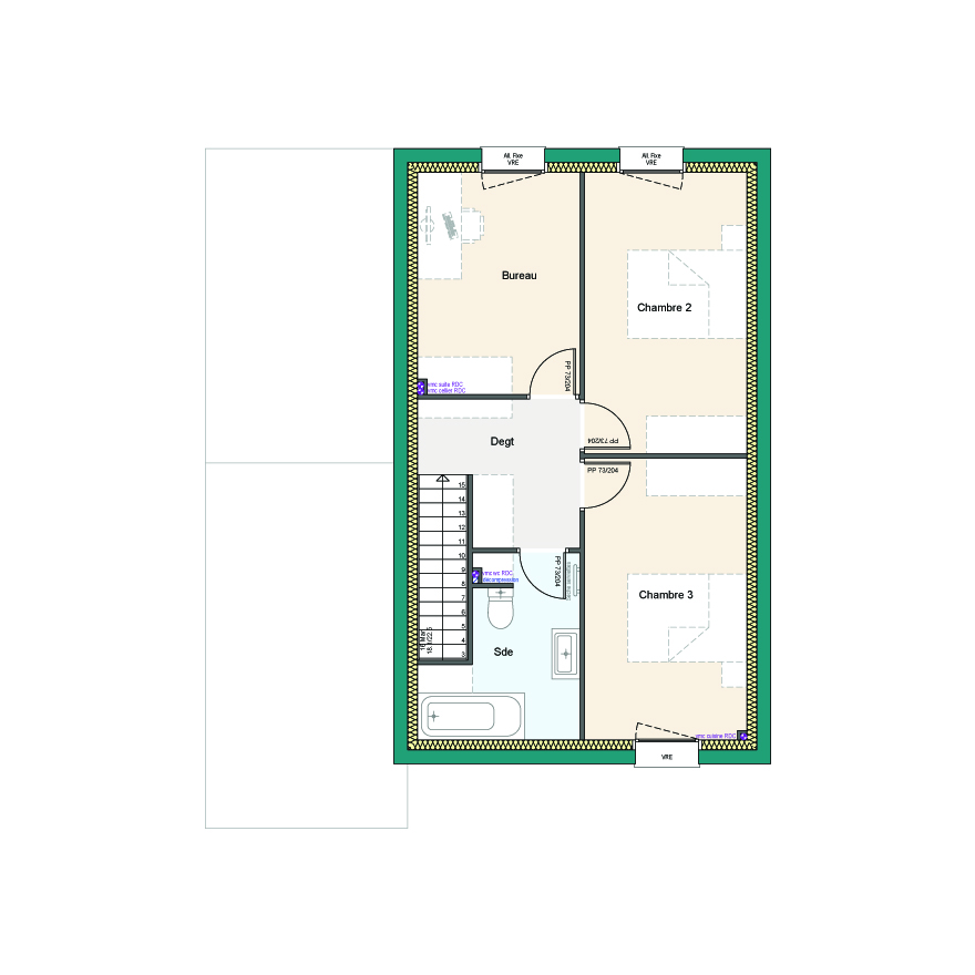
Descriptif

Maison conforme RE2020, 4 chambres, surface habitable 103 m².

Découvrez nos maisons access !

Plans
Caractéristiques
  • Chambres
    4
  • Surface habitable
    103 m2
  • Surface pièce de vie
    41 m2
  • Surface annexe
    16 m2