Descriptif

Maison conforme RE2020, 3 chambres, surface habitable 90 m².

Découvrez nos maisons access !

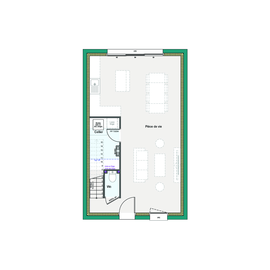
Plans
Caractéristiques
  • Chambres
    3
  • Surface habitable
    90 m2
  • Surface pièce de vie
    41 m2